Legionów 25B Tomaszów Maz. lok. 56
| Data zmiany | Cena całkowita | Cena za m² |
|---|---|---|
| 15 września 2025 08:47 | 428 417,00 zł | 7 900,00 zł |
Opis Nieruchomości
Nowe mieszkania w Tomaszowie Mazowieckim.
Przedstawiamy nowoczesną inwestycję mieszkaniową w atrakcyjnej okolicy tomaszowskiego Parku Bulwary. Składają się na nią dwa eleganckie budynki o pięciu kondygnacjach naziemnych i podziemny parking z pięćdziesięcioma miejscami postojowymi oraz kolejne trzydzieści jeden miejsc parkingowych na zewnątrz. Aby maksymalnie podnieść komfort życia budynki wyposażono w windy.
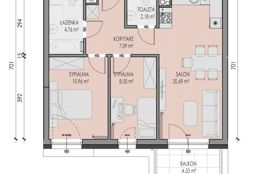
Prezentowane mieszkanie znajduje się na pierwszym piętrze budynku przy ulicy Legionów 25B, z oknami wychodzącymi na zachód oraz balkonem o powierzchni 4,53 m2. Składa się z salonu z aneksem kuchennym, dwóch sypialni, łazienki, toalety oraz przedpokoju. Jest wykończone w standardzie deweloperskim:
– otynkowane ściany
– betonowe wylewki na podłodze
– okna i parapety (zewnętrzne)
– drzwi wejściowe i domofon
– rozprowadzone instalacje (elektryczna z wyprowadzeniem pod oświetlenie, przyłącza instalacji wod-kan i odpływy, centralnego ogrzewania z grzejnikami)
– ogrzewanie centralne z sieci miejskiej
– regulator pokojowy
W przypadku każdego lokalu mieszkalnego istnieje możliwość zakupu komórki lokatorskiej jako elementu przynależnego, miejsca w garażu podziemnym, lub miejsca parkingowego przed budynkiem, zapewniającego prawo do wyłącznego użytkowania.
Cena komórki: 3.000 zł/m2. Wykaz dostępnych komórek w pliku Tomaszów Legionów Komórki B. Cena miejsca parkingowego w garażu podziemnym (poziom -1): 38.000 zł lub 42.000 zł. Cena miejsca parkingowego na parkingu zewnętrznym: 20.000 zł.
Planowane zakończenie inwestycji i oddanie lokali do użytkowania IV kwartał 2026r.
Na życzenie klienta możliwe wykończenie lokalu w standardzie “do zamieszkania”.
Nowe mieszkania w Tomaszowie Mazowieckim, więcej na naszej stronie Inwestycje TomPol Tomaszów Mazowiecki
Informacje o Nieruchomości
-
Piętro:Pierwsze
-
Powierzchnia:54,23 m²
-
Pokoje:3
-
Sypialnie:2
-
Łazienki:2
-
Cena (zł):428.417 zł brutto
-
Rok budowy:2025
-
Status:
Udogodnienia
- Balkon
- Garaż podziemny
- Parking
- Piwnica
- Winda
Materiały
- Beton
- Pustak ceramiczny



















