Piłsudskiego Tomaszów Mazowiecki lok. 18
Opis Nieruchomości
Nowe mieszkania w Tomaszowie Mazowieckim przy alei Piłsudskiego.
Przedstawiamy nową inwestycję mieszkaniową w Tomaszowie Mazowieckim przy alei Marszałka Józefa Piłsudskiego. Jest to jednoklatkowy, czterokondygnacyjny budynek wpisujący się w okoliczną przedwojenną zabudowę pierzejową.
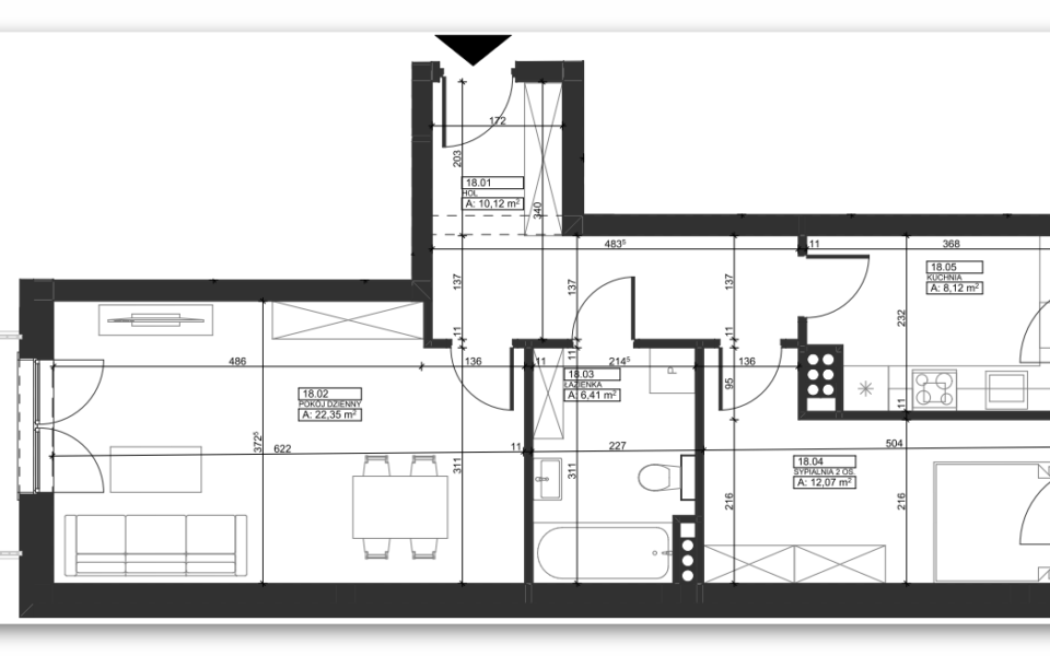
Oferujemy Państwu atrakcyjne mieszkanie nr 18 o powierzchni projektowej 59,07 m², położone na trzecim piętrze kameralnego, czteropiętrowego budynku w nowej inwestycji przy ulicy Piłsudskiego 9 – w samym sercu Tomaszowa Mazowieckiego.
Mieszkanie składa się z jasnego pokoju dziennego, z którego prowadzi wyjście na balkon o południowej ekspozycji, sypialni z oknem na północ, oddzielnej kuchni, łazienki oraz przedpokoju z miejscem na przestronne szafy.
Jest wykończone w standardzie deweloperskim:
– otynkowane ściany
– betonowe wylewki na podłodze
– okna i parapety (zewnętrzne)
– drzwi wejściowe antywłamaniowe klasy „C”, spełniające warunek izolacyjności akustycznej i domofon
– rozprowadzone instalacje: elektryczna (z wyprowadzeniem pod oświetlenie), przyłącza instalacji wod-kan i odpływy, centralnego ogrzewania z grzejnikami
– ogrzewanie gazowe
– termoregulator pokojowy.
Istnieje możliwość zakupu miejsca parkingowego w podwórzu, zapewniającego prawo do wyłącznego użytkowania.
Cena miejsca parkingowego (parking zewnętrzny): 24.000 zł lub 28.000 zł (miejsce dla niepełnosprawnych).
Planowane zakończenie inwestycji i oddanie lokali do użytkowania IV kwartał 2026r.
Na życzenie klienta możliwe wykończenie lokalu w standardzie “do zamieszkania”.
Informacje o Nieruchomości
-
Piętro:Trzecie
-
Powierzchnia:59,07 m²
-
Pokoje:2
-
Sypialnie:1
-
Łazienki:1
-
Cena (zł):496.188 zł brutto
-
Rok budowy:2026
-
Status:
Udogodnienia
- Balkon
- Parking
Materiały
- Beton
- Pustak ceramiczny



















