Rawa Mazowiecka Millenium Park bud. 4 lok. 18
| Data zmiany | Cena całkowita | Cena za m² |
|---|---|---|
| 9 września 2025 14:53 | 433 488,00 zł | 8 800,00 zł |
| 25 sierpnia 2025 13:55 | 418 710,00 zł | 8 500,00 zł |
Opis Nieruchomości
Nowe mieszkania w Rawie Mazowieckiej Millenium Park
Przedstawiamy nową inwestycję mieszkaniową w Rawie Mazowiecki przy ulicy Zwolińskiego. Składają się na nią cztery eleganckie budynki o czterech kondygnacjach naziemnych i parking naziemny ze 146-cioma miejscami postojowymi.
Pierwszy etap inwestycji obejmuje budynek nr 4 z 36-cioma miejscami parkingowymi oraz trzema miejscami garażowymi w budynku. Aby maksymalnie podnieść komfort życia budynek wyposażono w windę oraz rowerownię na poziomie 0.
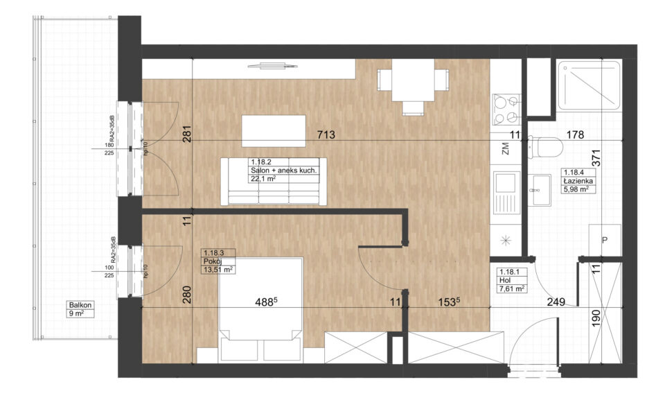
Prezentowane mieszkanie znajduje się na pierwszym piętrze budynku nr 4, z oknami oraz dużym balkonem o powierzchni 9 m2 z zachodnią ekspozycją. Składa się z pokoju dziennego z aneksem kuchennym, sypialni, łazienki oraz przedpokoju. Jest wykończone w standardzie deweloperskim:
– otynkowane ściany
– betonowe wylewki na podłodze
– okna i parapety (zewnętrzne)
– drzwi wejściowe i domofon
– rozprowadzone instalacje (elektryczna z wyprowadzeniem pod oświetlenie, przyłącza instalacji wod-kan i odpływy, centralnego ogrzewania z grzejnikami)
– ogrzewanie gazowe z lokalnej kotłowni automatycznej wspomagane pompą ciepła
– regulator pokojowy.
Istnieje możliwość zakupu komórki lokatorskiej jako elementu przynależnego, miejsca garażowego na poziomie 0 lub miejsca parkingowego przed budynkiem, zapewniającego prawo do wyłącznego użytkowania.
Cena komórki: 5.000 zł/m2. Cena miejsca parkingowego (poziom 0): 49.000 zł. Cena miejsca parkingowego (parking zewnętrzny): 25.000 zł
Planowane zakończenie inwestycji i oddanie lokali do użytkowania IV kwartał 2026r.
Na życzenie klienta możliwe wykończenie lokalu w standardzie “do zamieszkania”.
Nowe mieszkania w Rawie Mazowieckiej, więcej na naszej stronie Inwestycje – Rawa Mazowiecka
Informacje o Nieruchomości
-
Piętro:Pierwsze
-
Powierzchnia:49,26 m²
-
Pokoje:2
-
Sypialnie:1
-
Łazienki:1
-
Cena (zł):428.562 zł brutto
-
Rok budowy:2026
-
Status:
Udogodnienia
- Balkon
- Garaż
- Parking
- Piwnica
- Rowerownia
- Winda
Materiały
- Beton
- Pustak ceramiczny



















